物件掲載企業数:297|賃貸物件:3,622件|売買物件:3,319件|今週の登録物件:292
閲覧中のブラウザ(インターネットエクスプローラー)は非推奨ブラウザです。
物件が正しく表示されなかったり、正しく検索されない場合があります。最新のブラウザ(Google Chrome・Edgeなど)にてご利用お願いいたします。
  

長岡市寿1丁目2-51 倉庫・工場・その他 5万円の物件情報

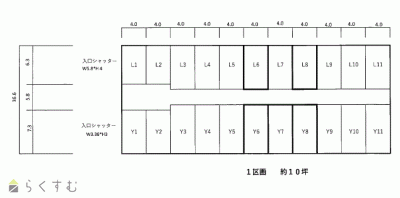
10坪の区画貸倉庫です。天井クレーンが付いてます。

物件名
所在地
面積
間取り
所在階
築年数
方位
賃料
管理費等
共益費
敷金
保証金
礼金
種別
構造
寿1丁目『10坪区画貸し倉庫』 天井クレーン付きです。
長岡市寿1丁目2-51
33㎡
(9.98坪)
-
-
不詳
-
5万円
なし
なし
なし
なし
なし
倉庫・工場・その他
鉄骨
  • 寿1丁目『10坪区画貸し倉庫』 天井クレーン付きです。
    ㈱スタッフサイトウ不動産部
  • この物件を問い合わせる/無料
  • TEL: 0258-24-0623

物件画像

外観 間取り
物件画像
※画像クリックで拡大表示
外観
物件画像
※画像クリックで拡大表示
間取り
詳細画像


物件概要

1年以下利用(短期利用)は6万~8万になります。
物件コード 00011-100430
物件名 寿1丁目『10坪区画貸し倉庫』 天井クレーン付きです。
交通 駅:信越線 北長岡駅から徒歩34分、バス:北中学校前から徒歩5分
所在地 長岡市寿1丁目2-51
物件種別 倉庫・工場・その他
総戸数 -
構造 鉄骨 階建 地上1階建
所在階/階数 - 号室 -
面積 33㎡ /9.98坪 方位 -
間取り -
賃料 5万円/月
1年以上利用の場合
管理費 -
礼金 -
敷金 -
ほか初期費用 - その他諸費用 別途消費税
更新料 - 火災(家財)保険 -
共益費 - 町内費 -
駐車場 - バイク料金 -
鍵交換費 - 清掃料 -
更新事務手数料 -
保証区分 連帯保証人+緊急連絡先
保証会社 区分:指定なし
-
連帯保証人 区分:要
-
仲介手数料 55,000円
築年月 不詳
利用制限 -
学校区 新町小学校(1,127m)・北中学校(356m)
設備 駐車場あり
入居時期 相談
取引態様 仲介
備考 軽作業で電力使用の場合は別途協議。
賃料に別途消費税がかかります。
手数料負担割合/配分割合 貸主:-%   借主:100% / 元付:50%   客付:50%  
取り扱い会社

㈱スタッフサイトウ不動産部

新潟県長岡市蔵王2丁目4番17号

情報登録日 2025/10/20 次回更新予定日 2026/01/01
  • 寿1丁目『10坪区画貸し倉庫』 天井クレーン付きです。
    ㈱スタッフサイトウ不動産部
  • この物件を問い合わせる/無料
  • TEL: 0258-24-0623

この物件の地図・周辺情報・行政情報

この物件の周辺情報・行政情報を詳しく見る
【周辺情報】
物件の近くにあるコンビニや銀行・学校など、アイコン付のマップで詳しく表示できます!
【行政情報】
水道料や下水道料・ガス料金など、暮らしに関係のある情報を表示しています。

担当取扱い店舗情報

取扱い店舗画像
㈱スタッフサイトウ不動産部
TEL: 0258-24-0623
所在地: 新潟県長岡市蔵王2丁目4番17号
交通: JR北長岡駅
営業時間: 8:30~17:30/定休日:第2・4土曜・日曜・祭日
免許番号: 新潟県知事(2)第5364号 この会社の情報を詳しく見る
所属団体名: 新潟県宅地建物取引業協会 長岡支部
取引態様: 仲介
ホームページ: http://hokuetsu-fudousan.com