物件掲載企業数:295|賃貸物件:3,620件|売買物件:3,319件|今週の登録物件:259
閲覧中のブラウザ(インターネットエクスプローラー)は非推奨ブラウザです。
物件が正しく表示されなかったり、正しく検索されない場合があります。最新のブラウザ(Google Chrome・Edgeなど)にてご利用お願いいたします。
  

新潟県長岡市南七日町13-6ロイヤルパレスA101 アパート 2DK 6.5万円の物件情報

家賃値下げしました!積水ハウス施工、2DKアパート。駐車場2台付きの物件です。

物件名
所在地
面積
間取り
所在階
築年数
方位
賃料
管理費等
共益費
敷金
保証金
礼金
種別
構造
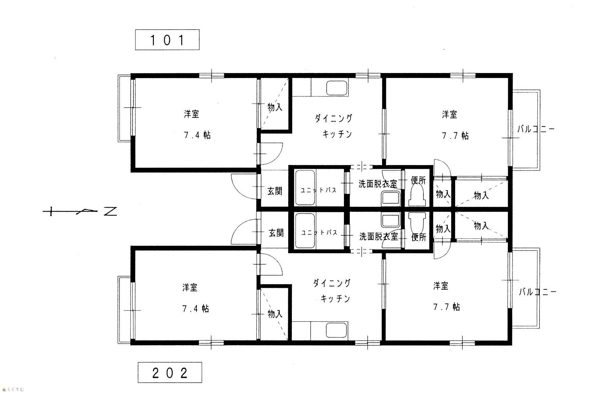
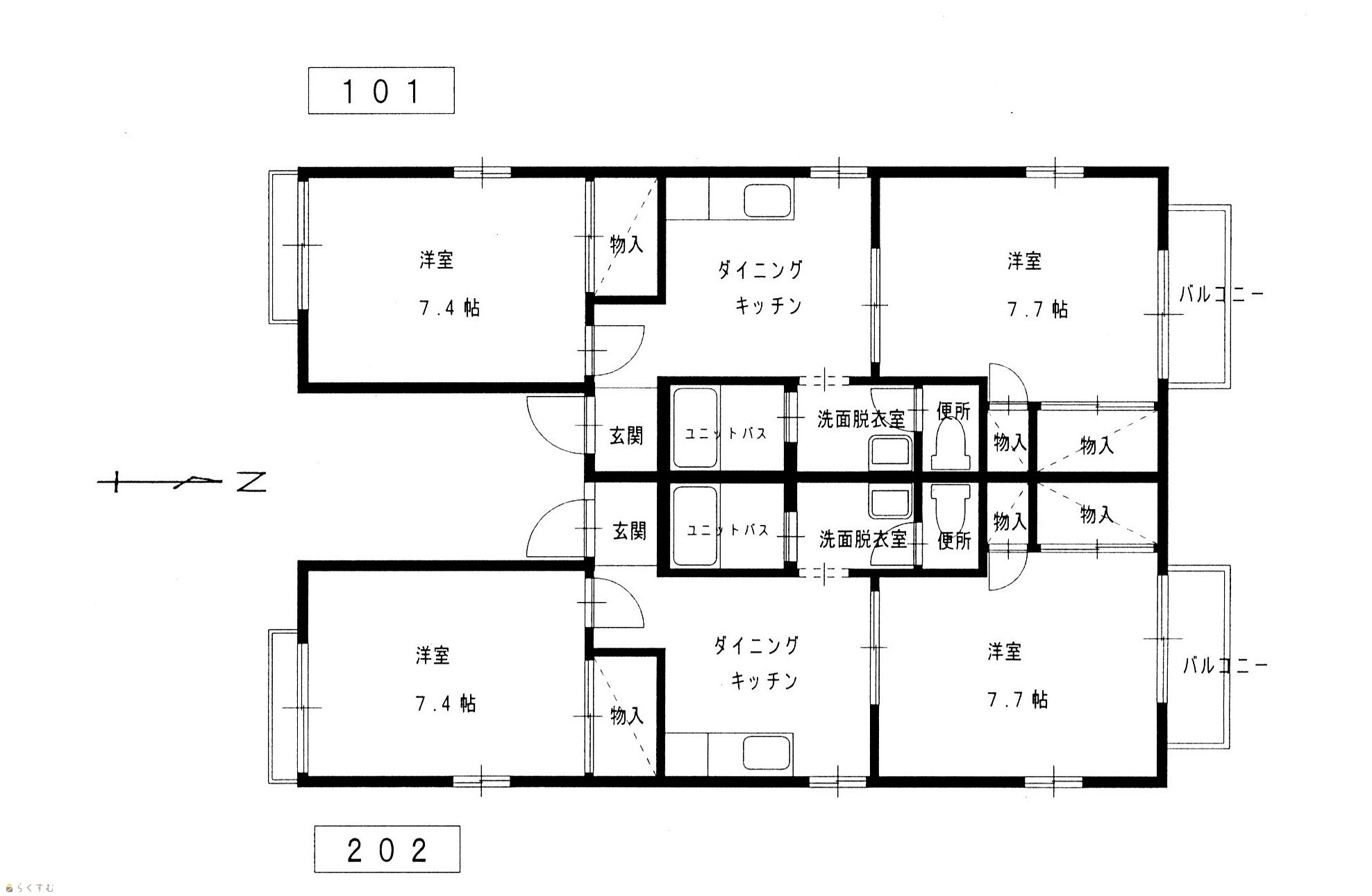
ロイヤルパレスA101号室
101号室
新潟県長岡市南七日町13-6ロイヤルパレスA101
46.36㎡
(14.02坪)
2DK
1階
30年
指定なし
6.5万円
なし
なし
なし
なし
なし
アパート・マンション・一戸建て
軽量鉄骨
  • ロイヤルパレスA101号室
    有限会社 五十嵐商事
  • この物件を問い合わせる/無料
  • TEL: 0258-28-1414

物件画像

外観 間取り
物件画像
※画像クリックで拡大表示
外観
物件画像
※画像クリックで拡大表示
間取り
詳細画像


物件概要

物件コード 00004-100901
物件名 ロイヤルパレスA101号室
交通 駅:上越新幹線 長岡駅から徒歩69分、バス:南七日町から徒歩4分
所在地 新潟県長岡市南七日町13-6ロイヤルパレスA101
物件種別 アパート・マンション・一戸建て
総戸数 4戸
構造 軽量鉄骨 階建 地上2階建
所在階/階数 1階/2階 号室 101号室
面積 46.36㎡ /14.02坪 方位 指定なし
間取り 2DK (洋室:7.7、7.4)
DK5.3
賃料 6.5万円/月
管理費 -
礼金 -
敷金 -
ほか初期費用 - その他諸費用 -
更新料 - 火災(家財)保険 要加入
共益費 - 町内費 200円
駐車場
付2台無料
バイク料金 -
鍵交換費 17,600円
清掃料 -
更新事務手数料 -
保証区分 保証会社+緊急連絡先
保証会社 区分:加入要
保証会社名:ジェイリース
①Jフラット  初回保証料 月額の総賃料70%、継続保証料 月額440円 ②学生プラン 初回保証料 一律 1万円、継続保証料 月額600円 ③留学生 連帯保証人 学校、敷金 4万円、保証会社無し
家賃保証金 45,640円
連帯保証人 区分:不要
-
仲介手数料 71,500円
築年月 1995年9月(築30年)
利用制限 二人入居:可、ペット:不可、楽器:不可
学校区 日越小学校(1,157m)・西中学校(1,012m)
設備 敷地内ゴミ置き場、駐車2台可、駐車場2台無料、角住居、バストイレ別、温水洗浄便座、洗面所独立、エアコン、エアコン2基、都市ガス、バルコニー、全居室フローリング、洗濯機置場 室内、脱衣所、玄関収納、押入、TVモニター付きインターホン、各居室照明、即入居可、保証会社利用可能、敷金・礼金不要、保証会社要加入
入居時期 即入居可
取引態様 仲介
備考 画像と現況が異なる場合は現況を優先します。
手数料負担割合/配分割合 貸主:0%   借主:100% / 元付:50%   客付:50%  
取り扱い会社

有限会社 五十嵐商事

新潟県長岡市三ツ郷屋2丁目5-23

情報登録日 2025/07/09 次回更新予定日 2025/11/20
  • ロイヤルパレスA101号室
    有限会社 五十嵐商事
  • この物件を問い合わせる/無料
  • TEL: 0258-28-1414

この物件の地図・周辺情報・行政情報

この物件の周辺情報・行政情報を詳しく見る
【周辺情報】
物件の近くにあるコンビニや銀行・学校など、アイコン付のマップで詳しく表示できます!
【行政情報】
水道料や下水道料・ガス料金など、暮らしに関係のある情報を表示しています。
セブン-イレブン 長岡南七日町店(コンビニ)まで200m
食品問屋スーパー カトウ食材 長岡店(スーパー)まで670m

※カメラのアイコンがある場合は、マウスをポイントするとその施設の画像がご覧いただけます。


担当取扱い店舗情報

取扱い店舗画像
有限会社 五十嵐商事
TEL: 0258-28-1414
所在地: 新潟県長岡市三ツ郷屋2丁目5-23
交通: 西長岡案内所バス停徒歩2分
営業時間: 平日9時~18時・土曜日10時~15時(3月のみ日曜、祝祭日10時~15時)/定休日:日曜、祝祭日、年末年始(12/28~1/5)
免許番号: 新潟県知事(14)1645号 この会社の情報を詳しく見る
所属団体名: 新潟県宅地建物取引業協会 長岡支部
取引態様: 仲介
ホームページ: https://ikarashi-shouji.com/